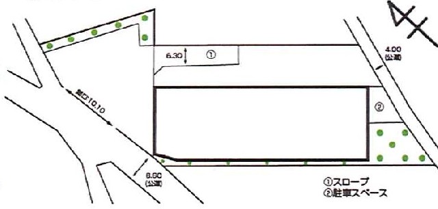
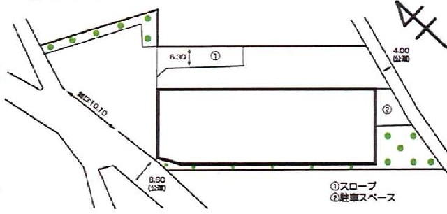
物件NO SL-0007 種別 貸倉庫 所在地 狭山市北入曽 土地面積(坪) 1086.74坪 価格/賃料 189.20万円 用途地域 準工業 現況 建蔽率 引渡し可能日 使用中・2026年7月使用開始 容積率 交通 圏央道 「狭山日高インター」6.4㎞ 西武新宿線「入曽」駅徒歩20分 接道 西8.6m その他 「賃貸条件」礼金:1ケ月 敷金:4ケ月契約期間:5年(再契約相談可)平成17年築・天井高3.5m以上・大型車両進入可 敷地3592.52㎡(1086.73坪) 幅員8.6m公道に間口約10m 平成17年築電気・水道・トイレ 周辺マップ